ОфисыУважаемые Арендаторы! Бизнес-Центр расположенв 3-х минутах ходьбы от станции метро БУТЫРСКАЯ!Условия и подробности аренды по телефону (495)618-72-18, (495)749-76-13,8-903-549-76-13, 8-905-567-33-75. Звоните нам или пишите E-mail: info@arendasvao.ru Предлагаем в АРЕНДУ ОФИСЫ
|
1 этаж |
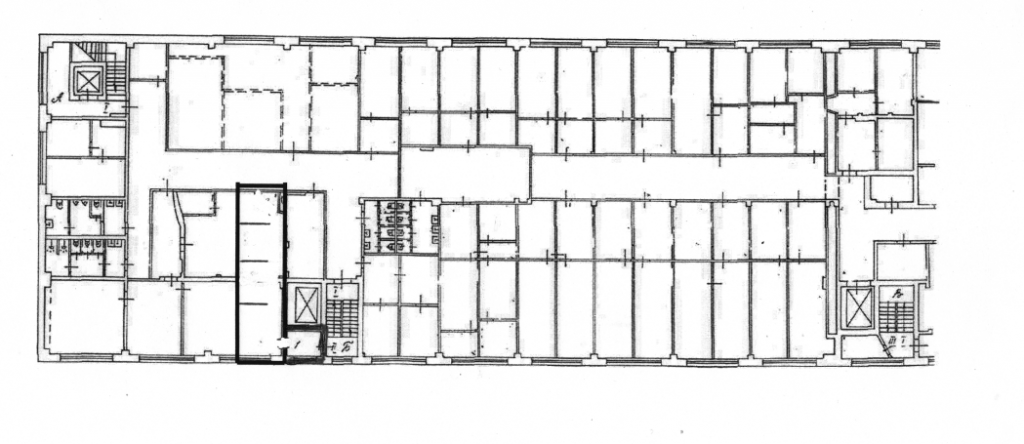
Антресоль 1 этажчасть оф.9 - 61.5 кв.м. см.планчасть оф.7 - 32.55 кв.м. см.план |
2 этаж |
|
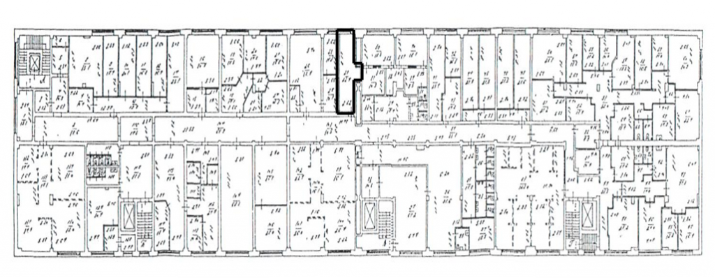
3 этажоф.29 - 104.9 кв.м. планоф. 26 - 51.3 кв. м. план |
4 этажоф. 20 - 119,6 кв.м. планоф. 17 - 35кв.м. план |
25 июля 2013
Наш Бизнес-центр расположен в 3-х минутах от МЕТРО!
Уважаемые АРЕНДАТОРЫ!!! Наши сотрудники подберут удобные для Вас варианты для аренды помещений. Рады будем ответить на все ваши вопросы по любому удобному для вас средству связи.-
20 июля 2013Все пожелания и вопросы по поводу работы нашего сайта присылайте на info@arendasvao.ru
С Уважением
